русский корабльнахуй
 
Новини  20 жовтня 2025 21:25 

Відомо, хто переміг в архітектурному конкурсі на забудову історичної частини Чернівців

підтримай автора: оригінал
3
5.1k
0
У конкурсі перемогла команда архітекторів з Івано-Франківська
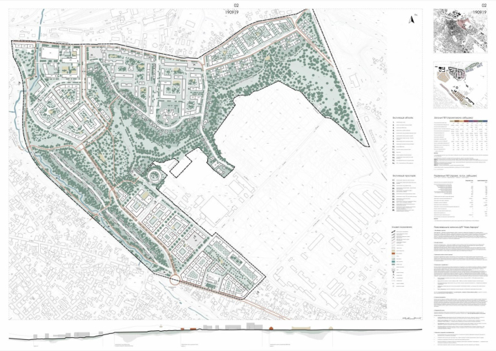
Відбувся Всеукраїнський відкритий архітектурний конкурс на кращу містобудівну концепцію детального плану території (ДПТ), орієнтовною площею 86,0 га, обмеженої вул. Українських добровольців – вул. Старожучківський Шлях – вул. Зеленою – вул. Новоушицькою – вул. Петера Деманта – вул. Кишинівською – вул. Січових стрільців – вул. Руською та залізничною колією у Чернівцях.
Про це повідомляє Департамент урбаністики та архітектури міської ради.
До участі в конкурсі зареєструвались 13 авторів та авторських колективів з Чернівців, Львова, Києва, Софіївської Борщагівки та Івано-Франківська. Відтак на розгляд журі було подано 6 проєктів.
За результатами конкурсу перше місце присудили проєктній пропозиції авторського колективу з м. Івано-Франківськ у складі Яценюк Ю., Скомаровський О., Шардакова А..
На фото проєкт, який визнали найкращим.
З усіма проєктними пропозиціями можна ознайомитися в Департаменті урбаністики та архітектури міської ради.